
目次
ハウスジャパンは、日本の四季を感じる住まいづくりをコンセプトに、デザインを楽しむ自由設計の住宅を提供。自然素材を活用した健康的な住環境と、おしゃれなデザイン、現代的な設備による快適性を両立しています。ここでは、ハウスジャパンの口コミ・評判、施工事例、家づくりの特徴を紹介します。
今回こちらで契約しました。 契約後の対応も親切で、サポートもしっかりしています。 こちらの要望に対して、良い所は良い、日当たりや耐震性の問題についてなど、しっかりとアドバイスを下さり、契約してよかったと思っています。 年に数回イベントがあり、OBでも参加でき、従業員の方も親切でいつもニコニコしていて楽しい方たちです!
こちらでおうちを建てさせていただきましたが、初回のお打ち合わせから現在に至るまで、スタッフさんの対応には満足しています。 暮らしてから気がつくちょっとした不具合もすぐに駆けつけてくださいます。 大手のハウスメーカーと迷いましたが、アフターケアを重視し、こちらを選びました。 大満足です。

ニューヨークのブルックリンスタイルを意識して設計された平屋住宅です。外壁はネイビーがメインであり、ホワイトとレッドの玄関ドアのカラーがマッチしており、スタイリッシュな雰囲気を醸し出しています。ビルトインガレージが設けられ、すっきりとした外観が魅力です。内装も生活感を程よく無くし、黒やグレーでまとめて上質な雰囲気を演出しています。

ネイビーやウッド調の外壁が特徴の外観。内装は、梁をかっこよく見せた勾配天井のリビングは、自然の光が差し込み、明るく開放的な空間を醸し出しています。キッチンは、モールテックスの造作壁や板張りの天井で仕上げているため、スタイリッシュで洗練された雰囲気を感じさせてくれます。その中でも畳スペースも設置しており、リラックスできる設計が取り入れられています。

岡崎市にあるモデルハウスを参考にし、ハイセンスなモダンの家づくりを実現できた事例です。モルタルデッキの中庭があり、家族だけのプライベートな時間を確保した空間となります。室内はグレーを基調としたモダンテイストが魅力であり、その中でも木目調のアクセントが温かみを感じられる点は魅力です。グレーの冷たさを感じさせず、かっこよさを表したお家といえます。

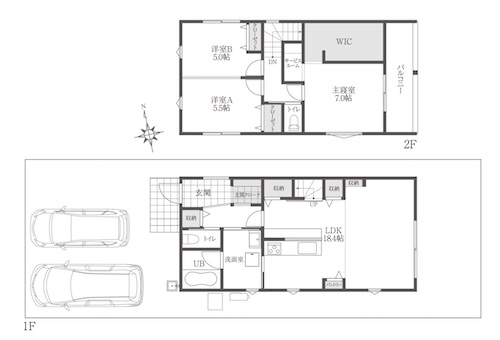
3LDK+S(WIC)の平屋間取り事例です。LDKはキッチンとダイニングが横付けとなっており家事動線の良い間取り。また、愛犬と快適に過ごすための工夫がたっぷり詰まっている点も特徴です。

ハウスジャパンでは建売住宅も取り扱っており、こちらは同社が提供する建売住宅の間取り例です。書斎が設置されていることに加えて、たっぷりの収納と家事が楽になるような間取りを採用しています。
ハウスジャパンは、高断熱・高気密構造による快適で省エネ性能に優れた家づくりを提供し、柔軟な設計対応と充実したアフターサポートで家族の理想を実現する住宅会社です。
このサイトでは、叶えたい「住宅タイプ別」に強みを持つ3社を紹介しています。ぜひ、理想の住まいづくりに向けた具体的なイメージ作りの参考にしてください。
ハウスジャパンの家づくりは、高性能で快適な住環境を提供してくれることが特徴です。高断熱・高気密な構造により、省エネ効果が高く、一年を通して快適な温度を維持する住まいを実現しています。
不動産と住宅建築、それぞれのスペシャリストが集結したプロ集団であり、耐震性や防火性にも配慮した設計で、長く安心して住み続けられる住まいを提供。家族全員が快適に過ごす空間づくり、健康で安全なライフスタイルをお家づくりによって実現できることが強みです。
ハウスジャパンでは、お客様のライフスタイルや要望に合わせた柔軟な設計・施工を行っています。豊富なプランから選ぶだけでなく、オーダーメイドの設計にも対応し、家族構成や将来的なライフステージの変化に合わせた間取りの提案が可能です。
また、施工後のアフターサポートも充実しており、長期にわたって住まいの維持・管理をサポートします。お客様に寄り添いながら、理想の家づくりを実現する体制が整っていることが強みです。
ハウスジャパンは、高断熱・高気密な構造で省エネ効果と快適性を追求し、耐震性・防火性にも優れた家づくりを提供します。柔軟な設計・施工対応で、家族のニーズに合わせたプランを提案し、充実したアフターサポート体制も特徴です。
| 建物長期保証 | 10年(以降最長25年点検、最長60年延長保証) |
|---|---|
| 住宅設備保証 | 公式サイトに記載ありませんでした |
| 長期優良住宅 | ○ |
ハウスジャパンでは、下記の6種類のラインナップを用意しています。
地域密着という点を活かし、きめ細やかなサポートを提供するハウスジャパンでは、引渡し後、4回(1年目・2年目・5年目・10年目)専門スタッフが点検と簡易な補修を実施。こちらの点検では、目視や触診、作動により住まいの状態を確認し、快適な家を維持するためのサポートを提供します(11年目以降は5年毎の点検となります)。
また、保証については建物保証最長60年間、しろあり保証最長30年間、住宅設備保証10年間、地盤保証20年間といったように、各種保証を用意しています。
※保証条件の詳細については、ハウスジャパンにお問い合わせください。
| 本社所在地 | 愛知県高浜市神明町7-13-38 |
|---|---|
| 展示場 | d.crossショールーム 愛知県刈谷市半城土中町1-19-16 |
| 対応エリア | 愛知 |
| 建築許可番号 | 愛知県知事許可(般‐4)第45868号 |
| 所在地 | 愛知県岡崎市八帖北町4-11(岡崎展示場) |
|---|---|
| 営業時間 | 10:00~17:00(火曜・水曜定休) |
| 所在地 | 愛知県名古屋市緑区桶狭間清水山1306-1 |
|---|---|
| 営業時間 | 10:00~18:00(水曜・木曜定休) |
| 所在地 | 愛知県名古屋市中村区名駅3-28-12 大名古屋ビルヂング19F |
|---|---|
| 営業時間 | 10:00~18:00 |